본문으로 바로가기 메인메뉴 바로가기

서브 비주얼 이미지

제목, 이미지, 이미지설명, 내용을 작성하실 수 있습니다.
서울 천호A1-1
작성자 총관리자 등록일 2025.12.10

서울 천호A1-1

공공재개발현재단계 : 주민대표회의 구성

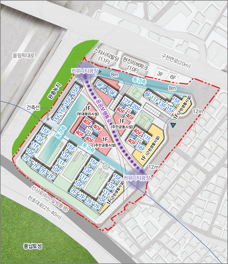
정비사업지구지구명,위치/면적,건설호수.세대타입,시공사,근거법령 및 진행단계와 조감도, 단치배치도의 정보를 제공합니다.

사업명

천호A1-1구역 공공재개발사업

위치/면적

서울특별시 강동구 천호동 467-61번지 일원(천호역 480m 인근) / 26,548.97㎡ (8,031평)

건설호수

747호

세대타입(전용)

39㎡ 46세대, 59㎡ 369세대, 84㎡ 254세대, 94㎡ 39세대, 104㎡ 39세대

시공사

대우+GS공고중(‘25.9.11)

근거법령

도시 및 주거환경정비법

IMG_101031.png

진행단계

  • 1. 후보지 선정 (21.03)
  • 2. 사전기획 (23.04)
  • 3. 정비구역지정 (24.11)
  • 4. 주민대표회의 구성 (25.02)
  • 5.시공사 선정 (00.00)
  • 6. 사업시행인가 (00.00)
  • 7. 관리처분 (00.00)
  • 8 .이주 및 철거 (00.00)
  • 9. 준공 및 청산 (00.00)
  • 조감도

    IMG_101120.jpeg
  • 단지배치도

    IMG_101112.png
첨부파일

콘텐츠 만족도 조사

페이지에서 제공하는 정보에 대하여 어느 정도 만족하셨습니까?

만족도 조사